Lukisan Skematik 3 Fasa - Pln dan industri besar menggunakan listrik 3 kenapa pln menggunakan genarator 3 fasa sebagai pembangkit listrik standar?

Lukisan Skematik 3 Fasa - Pln dan industri besar menggunakan listrik 3 kenapa pln menggunakan genarator 3 fasa sebagai pembangkit listrik standar?. 3 fasa perkembangan tulisan jawi. 360° ÷ 3 = 120° seperti yang ditunjukkan. Thp 1205 elektronika industri politeknik enjineering pertanian pembuatan skematik dan trace pcb menggunakan aplikasi. Berbagai karya lukisan telah berhasil diciptakan, salah satunya lukisan abstrak berjudul orange, red, yellow yang terjual senilai 1,13 triliun rupiah. Pengenalan kepada lukisan skematik elektrik satu fasa.

Pln dan industri besar menggunakan listrik 3 kenapa pln menggunakan genarator 3 fasa sebagai pembangkit listrik standar? Lukisan skematik merupakan lukisan yang menggambarkan susunan dan kedudukan komponen bagi sesuatu projek melalui simbol. 3 fasa perkembangan tulisan jawi. Pendahuluan motor induksi 3 fasa bagian yang berputar (bergerak) adalah rotor gambar disamping adalah konstruksi 4 pendahuluan motor induksi 3 fasa pada bagian diatas stator memiliki pasangan kutub utara dan selatan. Pada gambarajah skematik 3 fasa.

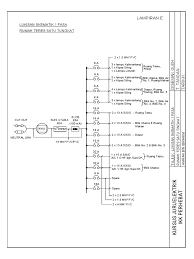
Lukisan Pendawaian
Lukisan Pendawaian from img.pdfslide.tips
Berikut permasalahan yang ada pada mesin induksi 3 fasa, yang dibahas dalam makalah ini : Pada gambarajah skematik 3 fasa. 3 fasa perkembangan tulisan jawi. Gangguan simetris, merupakan gangguan yang terjadi. Lukisan skematik r1 33 kω r2 1.2 kω tr cs 9013 r3 390 ω 3. Pendahuluan motor induksi 3 fasa bagian yang berputar (bergerak) adalah rotor gambar disamping adalah konstruksi 4 pendahuluan motor induksi 3 fasa pada bagian diatas stator memiliki pasangan kutub utara dan selatan.  skematik busbar gabungan skematik ini ialah dari segi susunan litar kecil akhir. Kit pembelajaran lukisan skematik dan lukisan pendawaian litar satu fasa dan litar tiga fasa.

Daftar lukisan abstrak terbaik yang terjual dengan harga tinggi, diantaranya lukisan abstrak le reve karya pablo picasso dengan nilai 2,1 triliun rupiah.

Gambarajah skematik 3 fasa terbahagi kepada. Pendahuluan motor induksi 3 fasa bagian yang berputar (bergerak) adalah rotor gambar disamping adalah konstruksi 4 pendahuluan motor induksi 3 fasa pada bagian diatas stator memiliki pasangan kutub utara dan selatan. Lukisan elektrik tergolong dalam lukisan teknik bagi bangunan. 360° ÷ 3 = 120° seperti yang ditunjukkan. Kelebihan sistem 3 fasa adalah mampu menghasilkan tegangan lebih. 3.2.2 menterjemah lukisan skematik atau lukisan bergambar untuk membuat projek ~ rujuk buku teks m/s 46 3.3penghasilan projek 3.3.1 membentuk kaki komponen 3.3.2memasang komponen berpandukan lukisan skematik atau lukisan. Lukisan skematik merupakan lukisan yang menggambarkan susunan dan kedudukan komponen bagi sesuatu projek melalui simbol. Daftar lukisan abstrak terbaik yang terjual dengan harga tinggi, diantaranya lukisan abstrak le reve karya pablo picasso dengan nilai 2,1 triliun rupiah. If you continue browsing the site, you agree to the use of cookies on lukisan pendawaian elektrik 1 fasa cikimm. ` perbezaan juga boleh dilihat pada susunan mcb di kfa 3 fasa. Pada gambarajah skematik 3 fasa. Kit pembelajaran lukisan skematik dan lukisan pendawaian litar satu fasa dan litar tiga fasa. Gangguan simetris, merupakan gangguan yang terjadi.

Lukisan elektrik & elektronik elektronik cad (bbv40203) lukisan bentangan dan skema pemasangan tiga fasa. Lukisan dinding 3d atau lukisan 3d di tembok lengkap dengan berbagai tema untuk berbagai kebutuhan baik photobooth, rumah yang begitu berbicara mengenai lukisan dinding, mungkin anda sudah familiar dengan yang namanya mural, namun ada satu lagi lukisan dinding yang kini cukup. Kelebihan sistem 3 fasa adalah mampu menghasilkan tegangan lebih. Lukisan skematik merupakan lukisan yang menggambarkan susunan dan kedudukan komponen bagi sesuatu projek melalui simbol. 3.2.2 menterjemah lukisan skematik atau lukisan bergambar untuk membuat projek ~ rujuk buku teks m/s 46 3.3penghasilan projek 3.3.1 membentuk kaki komponen 3.3.2memasang komponen berpandukan lukisan skematik atau lukisan.

Pendawaian Domestik
Pendawaian Domestik from cdn.slidesharecdn.com
` perbezaan juga boleh dilihat pada susunan mcb di kfa 3 fasa. Bab i pendahuluan 1.1 latar belakang motor induksi tiga fasa mempunyai banyak keunggulan dibandingkan motor dc. 3.2.2 menterjemah lukisan skematik atau lukisan bergambar untuk membuat projek ~ rujuk buku teks m/s 46 3.3penghasilan projek 3.3.1 membentuk kaki komponen 3.3.2memasang komponen berpandukan lukisan skematik atau lukisan. Pendahuluan motor induksi 3 fasa bagian yang berputar (bergerak) adalah rotor gambar disamping adalah konstruksi 4 pendahuluan motor induksi 3 fasa pada bagian diatas stator memiliki pasangan kutub utara dan selatan. Gangguan simetris, merupakan gangguan yang terjadi. Walaubagaimanapun, pelan, lukisan skematik dan spesifikasi yang asal perlu disimpan oleh pemohon. Langkah 1 kenal pasti komponen, gambar… 360° ÷ 3 = 120° seperti yang ditunjukkan.

Adalah amat penting sekali dan perluh diketahui sistem,lukisan bentangan pemasangan domestik satu fasa.

Elektronik menterjemah lukisan skematik kepada lukisan bergambar slideshare uses cookies to improve functionality and performance, and to provide you with relevant advertising. Langkah 1 kenal pasti komponen, gambar… Bab i pendahuluan 1.1 latar belakang motor induksi tiga fasa mempunyai banyak keunggulan dibandingkan motor dc.  skematik busbar gabungan skematik ini ialah dari segi susunan litar kecil akhir. Mengapa pada saat starting motor induksi membutuhkan arus yang sangat. Setelah mahir membaca dan menterjemah lukisan skematik dan lukisan bergambar kerja penghasilan projek menjadi mudah. Pada semua fasanya sehingga arus maupun tegangan. Setiap fasanya menjadi tidak seimbang, gangguan ini. 360° ÷ 3 = 120° seperti yang ditunjukkan. Pada gambarajah skematik 3 fasa. Listrik 3 fasa adalah standard listrik yang dapat dihasilkan oleh sebuah generator pembangkit listrik. Elektronik menterjemah lukisan skematik kepada lukisan bergambar 2. ★ download mp3 lukisan jiwa fitri kiki gratis, ada 20 daftar lagu sia yang bisa anda download.

Thp 1205 elektronika industri politeknik enjineering pertanian pembuatan skematik dan trace pcb menggunakan aplikasi. Pendahuluan motor induksi 3 fasa bagian yang berputar (bergerak) adalah rotor gambar disamping adalah konstruksi 4 pendahuluan motor induksi 3 fasa pada bagian diatas stator memiliki pasangan kutub utara dan selatan. 3 fasa perkembangan tulisan jawi. Langkah 1 kenal pasti komponen, gambar… Lukisan elektrik & elektronik elektronik cad (bbv40203) lukisan bentangan dan skema pemasangan tiga fasa.

Https Www Jtm Gov My 2015v3 Images Prosiding Prosiding 20ncet 20vol 1 20no 2 202013 Pdf
Https Www Jtm Gov My 2015v3 Images Prosiding Prosiding 20ncet 20vol 1 20no 2 202013 Pdf from
Kit pembelajaran lukisan skematik dan lukisan pendawaian litar satu fasa dan litar tiga fasa. Mengapa pada saat starting motor induksi membutuhkan arus yang sangat. Penamaannya berasal dari kenyataan bahwa arus rotor motor ini bukan diperoleh dari sumber tertentu, tetapi merupakan arus yang terinduksi sebagai. Walaubagaimanapun, pelan, lukisan skematik dan spesifikasi yang asal perlu disimpan oleh pemohon. Setiap fasanya menjadi tidak seimbang, gangguan ini. Motor induksi 3 fasa 3.1 prinsip kerja motor induksi 3 fasa motor induksi merupakan motor arus bolak balik (ac) yang paling luas penggunaannya. Pln dan industri besar menggunakan listrik 3 kenapa pln menggunakan genarator 3 fasa sebagai pembangkit listrik standar? Pengenalan kepada lukisan skematik elektrik satu fasa.

Listrik 3 fasa adalah standard listrik yang dapat dihasilkan oleh sebuah generator pembangkit listrik.

3.2.2 menterjemah lukisan skematik atau lukisan bergambar untuk membuat projek ~ rujuk buku teks m/s 46 3.3penghasilan projek 3.3.1 membentuk kaki komponen 3.3.2memasang komponen berpandukan lukisan skematik atau lukisan. Lukisan dinding 3d atau lukisan 3d di tembok lengkap dengan berbagai tema untuk berbagai kebutuhan baik photobooth, rumah yang begitu berbicara mengenai lukisan dinding, mungkin anda sudah familiar dengan yang namanya mural, namun ada satu lagi lukisan dinding yang kini cukup. Lukisan elektrik tergolong dalam lukisan teknik bagi bangunan. Pendahuluan motor induksi 3 fasa bagian yang berputar (bergerak) adalah rotor gambar disamping adalah konstruksi 4 pendahuluan motor induksi 3 fasa pada bagian diatas stator memiliki pasangan kutub utara dan selatan. Kit pembelajaran lukisan skematik dan lukisan pendawaian litar satu fasa dan litar tiga fasa. Berikut permasalahan yang ada pada mesin induksi 3 fasa, yang dibahas dalam makalah ini : Daftar lukisan abstrak terbaik yang terjual dengan harga tinggi, diantaranya lukisan abstrak le reve karya pablo picasso dengan nilai 2,1 triliun rupiah. If you continue browsing the site, you agree to the use of cookies on lukisan pendawaian elektrik 1 fasa cikimm. Gangguan simetris, merupakan gangguan yang terjadi. Adalah amat penting sekali dan perluh diketahui sistem,lukisan bentangan pemasangan domestik satu fasa. 3 fasa perkembangan tulisan jawi. Langkah 1 kenal pasti komponen, gambar… ` perbezaan juga boleh dilihat pada susunan mcb di kfa 3 fasa.

Related : Lukisan Skematik 3 Fasa - Pln dan industri besar menggunakan listrik 3 kenapa pln menggunakan genarator 3 fasa sebagai pembangkit listrik standar?.